The Camellia
Stylish Vertical Living with Smart, Purposeful Design
800 SF | 2 Bedrooms | 2 Bathrooms | 2 Stories | Starting Price $248,000
The Camellia offers an ideal mix of function, flow, and flexibility in a sleek two-story layout, designed for buyers who value space without excess and tech without complication. Whether you're a first-time homeowner looking for the right-sized home or an empty nester ready to simplify, the Camellia brings everything you need — and nothing you don’t.
With 800 square feet and a starting price of $248,000, the Camellia offers an affordable, beautifully efficient lifestyle in a community built on values, wellness, and connection.
Key Features:
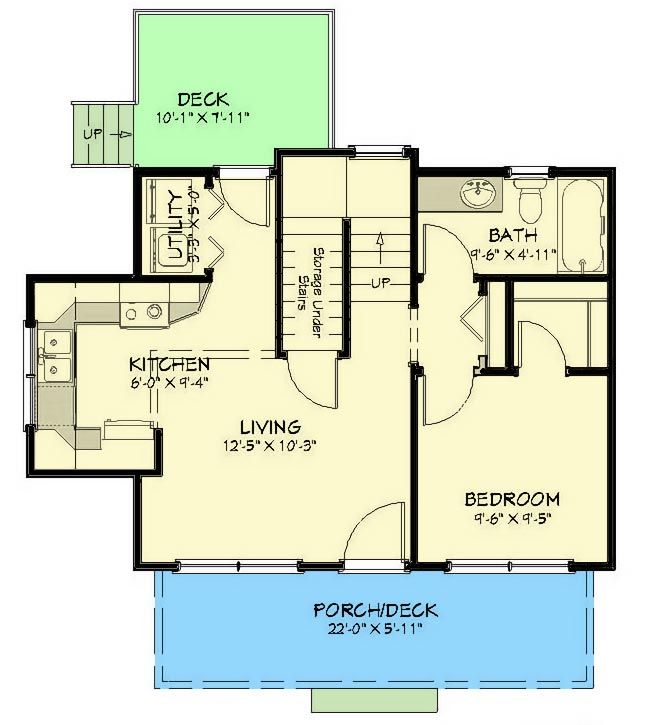
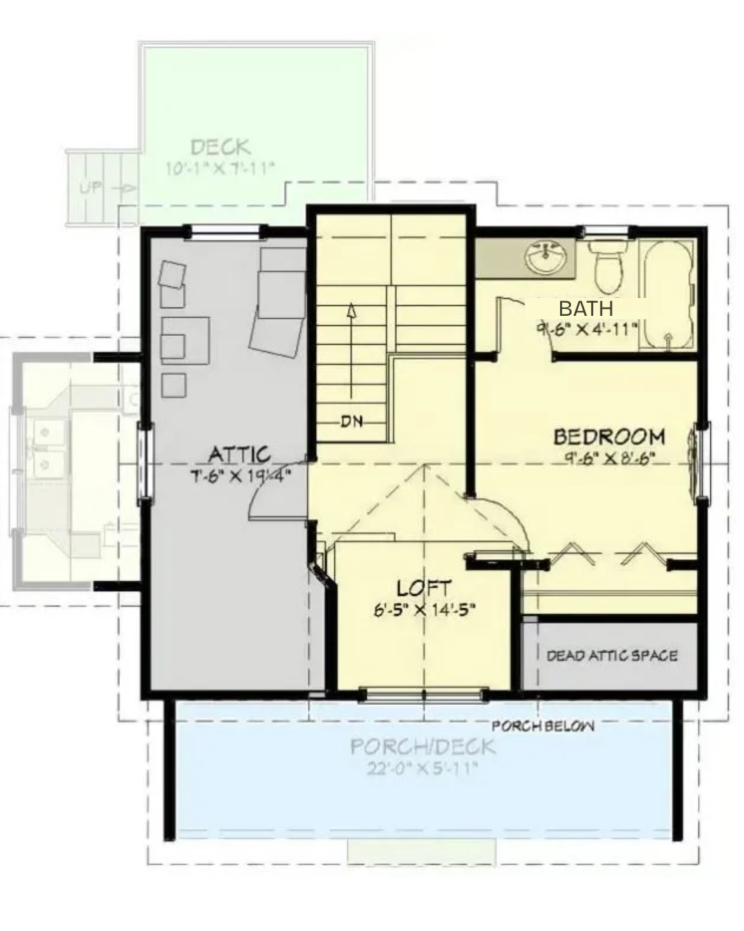
- Two-story layout with excellent separation between public and private space
- 2 bedrooms and 2 full bathrooms, ideal for guests, family, or dual living needs
- Light-filled open living and kitchen area on the ground floor
- Second-level suite offers privacy and flexibility
- Covered front porch that faces one of Capella’s signature courtyards
This home is especially appealing to:
- Buyers seeking an affordable entry into homeownership
- Residents who want privacy and vertical living in a compact footprint
- People looking for low-maintenance living in a vibrant community
Smart Home, Seamless Living
- Fully integrated AI-powered smart systems for lighting, climate, and security
- Energy-efficient appliances and finishes designed to lower utility costs
- Smart home hub + mobile app for effortless control
- Healthy home features, including air quality sensors
Connected by Design
The Camellia is oriented around one of Capella Cottages’ shared courtyards, each designed as an outdoor living space to relax, gather, and enjoy daily life with neighbors. From the cozy firepits of the Oasis Courtyard to the wellness-focused Zen Garden, your home is never far from peaceful beauty or meaningful connection.
The Camellia — Vertical comfort, grounded in community.
Now available for $248,000.







